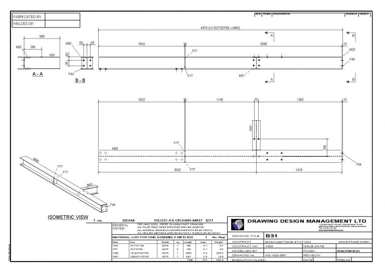
Basingstoke Train Station
Location: Basingstoke
Summary: Steel structure to support canopy & frame for station entrance.
Specification: To provide complete roof & wall structure & service platform to top of canopy
Challenges of the task: The main challenge for this contract was ensuring that the complete design worked for all co-ordinated interfaces including glass windows etc.


